1 Hidden Ridge Road, North Royalton, OH 44133 (MLS # 5203644)
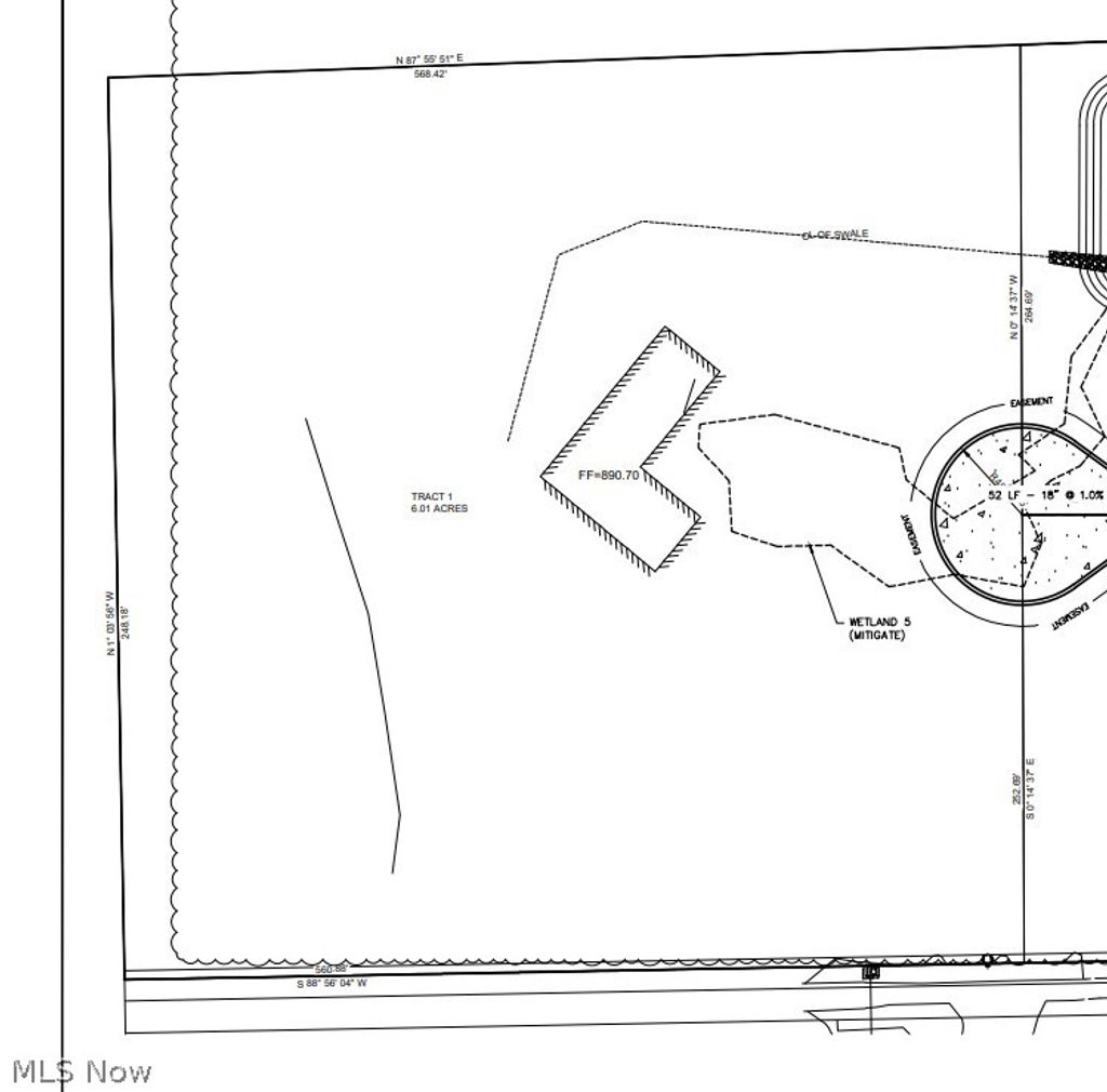
Positioned at the end of a newly developed private road/cul-de-sac that hosts only 5 homesites, this exceptional, premium lot offers a rare opportunity to create a truly custom estate. Set at a higher elevation, the property captures breathtaking sunrise and sunset views, while the level yet gently rolling terrain adds natural character and beauty"”an ideal canvas for a distinctive architectural vision. The rear boundary is defined by protected Metroparks land and Healey's Creek, ensuring a private, natural backdrop that will remain untouched. With over six premium acres, the setting offers both scale and seclusion, well-suited for a luxury residence. Utilities are available for connection, allowing builders and buyers to move efficiently from concept to construction. Private road with an HOA limited to shared maintenance (not many restrictions for homeowners). HOA fees are estimated. Actual fees will be determined among 5 owners. Final road finishes will be completed after homes are built. Opportunities of this caliber"”combining acreage, elevation, and preserved surroundings"”are a rare find!
Property Type(s):
Lot/Land/Acreage
| Last Updated | 4/22/2026 | Tract | HIDDEN RIDGE |
|---|---|---|---|
| Year Built | 0 | County | Cuyahoga |
Additional Details
| AMENITIES | Insurance |
|---|---|
| HOA DUES | 2500|Annually |
| LOT | 6.0108 acre(s) |
| LOT DESCRIPTION | Cleared, Cul-De-Sac, Level, Rolling Slope, Sloped |
| LOT DIMENSIONS | 503x511 |
| PARKING | Driveway |
| SEWER | Septic Needed |
| SUBDIVISION | HIDDEN RIDGE |
| UTILITIES | Electricity Available, Natural Gas Available |
| VIEW | Yes |
| VIEW DESCRIPTION | Panoramic |
| WATER | Well, Private |
Location
Contact us about this Property
| / | |
| We respect your online privacy and will never spam you. By submitting this form with your telephone number you are consenting for Ben Schafer to contact you even if your name is on a Federal or State "Do not call List". | |
Listing provided by: Jennifer R Burke | 216-905-8240, Coldwell Banker Schmidt Realty, jennifer.burke@cbschmidtohio.com, 216-905-8240
The data relating to real estate for sale on this website comes in part from the Internet Data Exchange program of NEOHREX. Real estate listings held by brokerage firms other than Ben Schafer Realty are marked with the Internet Data Exchange logo and detailed information about them includes the name of the listing broker(s).
Listing information is deemed reliable, but not guaranteed.
Data Last Updated: 4/22/26 4:33 PM PDT
This IDX solution is (c) Diverse Solutions 2026.
Like Us On Facebook

Search for your next home
Latest Real Estate
-
$0
409 East Street
Caldwell, OH
-
$1
0 Clem Garvin Road
Caldwell, OH
-
$1
0 Tract 14 CR 7 Rear
Caldwell, OH
-
$450
612 West Street #Suite 7
Caldwell, OH
-
$500
612 West Street #Suite 6
Caldwell, OH
-
$500
612 West Street #Suite 5
Caldwell, OH
-
$500
612 West Street #Suite 4
Caldwell, OH
-
$500
612 West Street #Suite 3
Caldwell, OH
-
$29,900
802 Fairground Street
Caldwell, OH
-
$49,900
608 west Street
Caldwell, OH
-
$60,000
SR 215
Caldwell, OH
-
$74,900
512 North Street
Caldwell, OH
-
$83,000
834 North Street
Caldwell, OH
-
$85,000
616 Miller Street
Caldwell, OH
-
$124,000
606 West Street
Caldwell, OH
-
$169,000
519 North Street
Caldwell, OH
-
$199,900
44250 Fairground Road
Caldwell, OH
-
$229,900
16895 Bronze Heights Lane
Caldwell, OH
-
$320,000
49197 John Tomcho Road
Caldwell, OH
-
$513,300
Parry Hollow
Caldwell, OH
-
$589,000
8902 N State Route 78
Caldwell, OH
-
$1,950,000
17030 McConnellsville Road
Caldwell, OH
Lot Size
5,750 sqft
Home Size
1,208 sqft
Beds
3 Beds
Baths
1 Bath
Lot Size
2,501 sqft
Home Size
1,313 sqft
Beds
3 Beds
Baths
1 Bath
Lot Size
6,670 sqft
Home Size
1,856 sqft
Beds
4 Beds
Baths
2 Baths
Lot Size
23,262 sqft
Home Size
3,408 sqft
Beds
3 Beds
Baths
2 Baths
Lot Size
25,483 sqft
Home Size
2,376 sqft
Beds
5 Beds
Baths
3 Baths
Lot Size
15.00 ac
Home Size
N/A
Beds
2 Beds
Baths
2 Baths
-
Lot Size2,109 sqft
Home Size1,456 sqft
Beds2 Beds
Baths1 Bath
-
Lot Size130.80 ac
Home SizeN/A
BedsN/A
BathsN/A
-
Lot Size128.00 ac
Home SizeN/A
BedsN/A
BathsN/A
-
Lot Size4,356 sqft
Home SizeN/A
BedsN/A
BathsN/A
-
Lot Size4,356 sqft
Home SizeN/A
BedsN/A
BathsN/A
-
Lot Size4,356 sqft
Home SizeN/A
BedsN/A
BathsN/A
-
Lot Size4,356 sqft
Home SizeN/A
BedsN/A
BathsN/A
-
Lot Size4,356 sqft
Home SizeN/A
BedsN/A
BathsN/A
-
Lot Size8,712 sqft
Home SizeN/A
BedsN/A
BathsN/A
-
Lot Size6,665 sqft
Home SizeN/A
BedsN/A
BathsN/A
-
Lot Size5.03 ac
Home SizeN/A
BedsN/A
BathsN/A
-
Lot Size2,527 sqft
Home Size1,870 sqft
BedsN/A
BathsN/A
-
Lot Size5,750 sqft
Home Size1,208 sqft
Beds3 Beds
Baths1 Bath
-
Lot Size2,501 sqft
Home Size1,313 sqft
Beds3 Beds
Baths1 Bath
-
Lot Size1,917 sqft
Home SizeN/A
Beds2 Beds
Baths2 Baths
-
Lot Size6,670 sqft
Home Size1,856 sqft
Beds4 Beds
Baths2 Baths
-
Lot Size3.29 ac
Home SizeN/A
BedsN/A
BathsN/A
-
Lot Size23,262 sqft
Home Size3,408 sqft
Beds3 Beds
Baths2 Baths
-
Lot Size25,483 sqft
Home Size2,376 sqft
Beds5 Beds
Baths3 Baths
-
Lot Size102.66 ac
Home SizeN/A
BedsN/A
BathsN/A
-
Lot Size15.00 ac
Home SizeN/A
Beds2 Beds
Baths2 Baths
-
Lot Size3.17 ac
Home SizeN/A
BedsN/A
BathsN/A