5660 Marine Parkway, Mentor on the Lake, OH 44060 (MLS # 5202275)
|
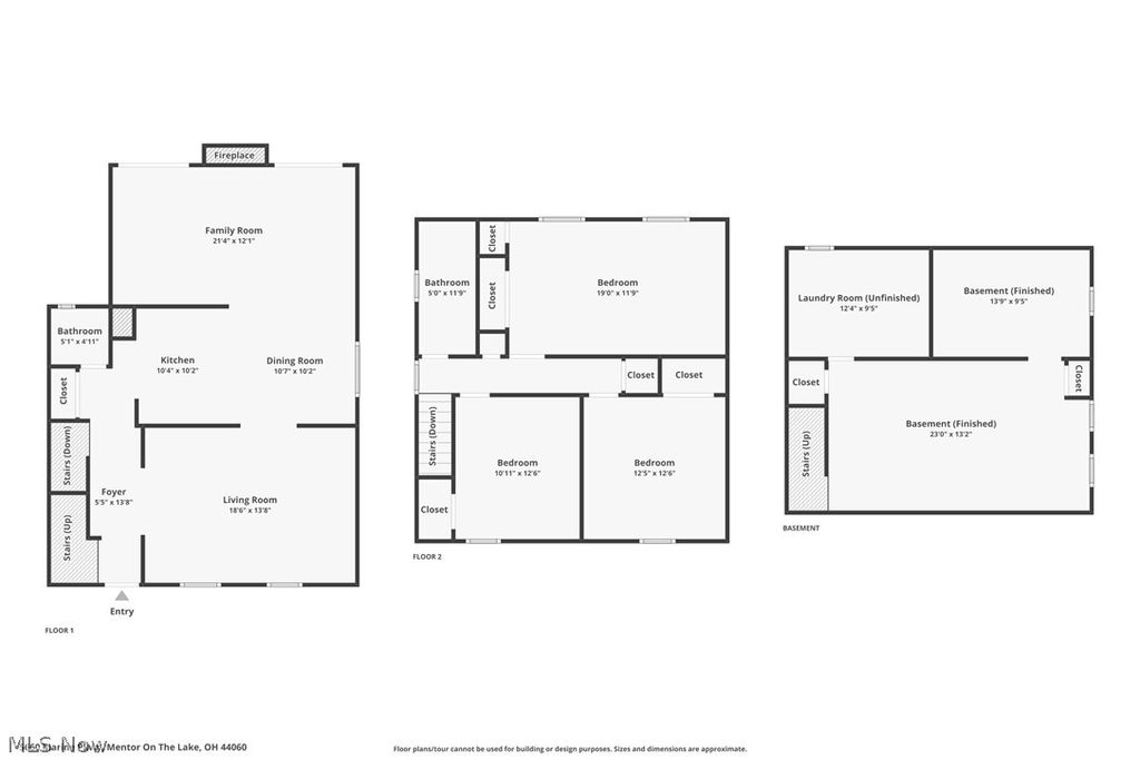
Welcome to 5660 Marine Parkway"”an immaculate, three-bedroom home that blends comfort, style, and everyday functionality. From the moment you arrive, the inviting curb appeal draws you in, leading to a charming front porch"”perfect for morning coffee while taking in peaceful sunrises. Inside, a spacious living room filled with natural light welcomes you and flows effortlessly into the main living area. The kitchen features rich dark cabinetry, light granite countertops, and stainless steel appliances, all included, and opens to the dining area, creating an ideal space for gathering and entertaining. The family room offers a warm and inviting atmosphere with vaulted ceilings, a beautiful fireplace, and sliding doors that lead out to the back deck. A half bath completes the main level. Upstairs, you'll find three generously sized bedrooms with ample natural light. The full bath is thoughtfully designed with a large double-sink vanity and a tub/shower combination. The living space continues into the finished lower level, perfect for movie nights or game day, along with a laundry space for added convenience. Step outside and unwind in your own private backyard oasis, featuring a fully fenced yard, a spacious two-tiered deck, and an above-ground pool"”ideal for summer relaxation and entertaining. Attached two-car garage. Recent updates include new front steps (2026), a microwave (2025), a fence (2024), and a gas furnace, stove, and basement carpet (2023). Ideally located just minutes from local restaurants, the civic center, and a scenic trail leading to Veterans Park, Mentor Beach Park, with beautiful views of Lake Erie. Situated on a corner lot and enhanced by a new LED light post, this home even offers the perfect setting for sharing treats and creating memories during your favorite fall celebrations. With its thoughtful updates, inviting spaces, and ideal location, this home offers the perfect blend of comfort and lifestyle, and is ready for you to move in.
Property Type(s):
Single Family
| Last Updated | 4/21/2026 | Tract | Lakeway Sub 1 |
|---|---|---|---|
| Year Built | 1974 | Garage Spaces | 2.0 |
| County | Lake |
Additional Details
| AIR | Central Air |
|---|---|
| AIR CONDITIONING | Yes |
| APPLIANCES | Dishwasher, Disposal, Dryer, Microwave, Range, Refrigerator, Washer |
| BASEMENT | Finished, Full, Yes |
| CONSTRUCTION | Brick |
| FIREPLACE | Yes |
| GARAGE | Yes |
| HEAT | Forced Air, Natural Gas |
| LOT | 0.3306 acre(s) |
| PARKING | Attached, Garage, Garage Door Opener |
| POOL | Yes |
| POOL DESCRIPTION | Private |
| SEWER | Public Sewer |
| STORIES | 2 |
| STYLE | Colonial |
| SUBDIVISION | Lakeway Sub 1 |
| TAXES | 4783 |
| WATER | Public |
Location
Contact us about this Property
| / | |
| We respect your online privacy and will never spam you. By submitting this form with your telephone number you are consenting for Ben Schafer to contact you even if your name is on a Federal or State "Do not call List". | |
Listing provided by: Joe Vaccaro | 216-503-7007, EXP Realty, LLC., joe@vaccaroteam.com, 216-503-7007
The data relating to real estate for sale on this website comes in part from the Internet Data Exchange program of NEOHREX. Real estate listings held by brokerage firms other than Ben Schafer Realty are marked with the Internet Data Exchange logo and detailed information about them includes the name of the listing broker(s).
Listing information is deemed reliable, but not guaranteed.
Data Last Updated: 4/22/26 10:37 PM PDT
This IDX solution is (c) Diverse Solutions 2026.
Like Us On Facebook

Search for your next home
Latest Real Estate
-
$0
409 East Street
Caldwell, OH
-
$1
0 Clem Garvin Road
Caldwell, OH
-
$1
0 Tract 14 CR 7 Rear
Caldwell, OH
-
$450
612 West Street #Suite 7
Caldwell, OH
-
$500
612 West Street #Suite 6
Caldwell, OH
-
$500
612 West Street #Suite 5
Caldwell, OH
-
$500
612 West Street #Suite 4
Caldwell, OH
-
$500
612 West Street #Suite 3
Caldwell, OH
-
$29,900
802 Fairground Street
Caldwell, OH
-
$49,900
608 west Street
Caldwell, OH
-
$60,000
SR 215
Caldwell, OH
-
$74,900
512 North Street
Caldwell, OH
-
$83,000
834 North Street
Caldwell, OH
-
$85,000
616 Miller Street
Caldwell, OH
-
$124,000
606 West Street
Caldwell, OH
-
$169,000
519 North Street
Caldwell, OH
-
$199,900
44250 Fairground Road
Caldwell, OH
-
$229,900
16895 Bronze Heights Lane
Caldwell, OH
-
$320,000
49197 John Tomcho Road
Caldwell, OH
-
$513,300
Parry Hollow
Caldwell, OH
-
$589,000
8902 N State Route 78
Caldwell, OH
-
$1,950,000
17030 McConnellsville Road
Caldwell, OH
Lot Size
5,750 sqft
Home Size
1,208 sqft
Beds
3 Beds
Baths
1 Bath
Lot Size
2,501 sqft
Home Size
1,313 sqft
Beds
3 Beds
Baths
1 Bath
Lot Size
6,670 sqft
Home Size
1,856 sqft
Beds
4 Beds
Baths
2 Baths
Lot Size
23,262 sqft
Home Size
3,408 sqft
Beds
3 Beds
Baths
2 Baths
Lot Size
25,483 sqft
Home Size
2,376 sqft
Beds
5 Beds
Baths
3 Baths
Lot Size
15.00 ac
Home Size
N/A
Beds
2 Beds
Baths
2 Baths
-
Lot Size2,109 sqft
Home Size1,456 sqft
Beds2 Beds
Baths1 Bath
-
Lot Size130.80 ac
Home SizeN/A
BedsN/A
BathsN/A
-
Lot Size128.00 ac
Home SizeN/A
BedsN/A
BathsN/A
-
Lot Size4,356 sqft
Home SizeN/A
BedsN/A
BathsN/A
-
Lot Size4,356 sqft
Home SizeN/A
BedsN/A
BathsN/A
-
Lot Size4,356 sqft
Home SizeN/A
BedsN/A
BathsN/A
-
Lot Size4,356 sqft
Home SizeN/A
BedsN/A
BathsN/A
-
Lot Size4,356 sqft
Home SizeN/A
BedsN/A
BathsN/A
-
Lot Size8,712 sqft
Home SizeN/A
BedsN/A
BathsN/A
-
Lot Size6,665 sqft
Home SizeN/A
BedsN/A
BathsN/A
-
Lot Size5.03 ac
Home SizeN/A
BedsN/A
BathsN/A
-
Lot Size2,527 sqft
Home Size1,870 sqft
BedsN/A
BathsN/A
-
Lot Size5,750 sqft
Home Size1,208 sqft
Beds3 Beds
Baths1 Bath
-
Lot Size2,501 sqft
Home Size1,313 sqft
Beds3 Beds
Baths1 Bath
-
Lot Size1,917 sqft
Home SizeN/A
Beds2 Beds
Baths2 Baths
-
Lot Size6,670 sqft
Home Size1,856 sqft
Beds4 Beds
Baths2 Baths
-
Lot Size3.29 ac
Home SizeN/A
BedsN/A
BathsN/A
-
Lot Size23,262 sqft
Home Size3,408 sqft
Beds3 Beds
Baths2 Baths
-
Lot Size25,483 sqft
Home Size2,376 sqft
Beds5 Beds
Baths3 Baths
-
Lot Size102.66 ac
Home SizeN/A
BedsN/A
BathsN/A
-
Lot Size15.00 ac
Home SizeN/A
Beds2 Beds
Baths2 Baths
-
Lot Size3.17 ac
Home SizeN/A
BedsN/A
BathsN/A