2200 Union Street, Bellaire, OH 43906 (MLS # 5177168)
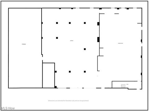
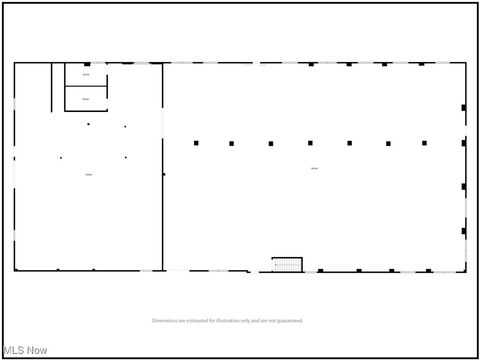
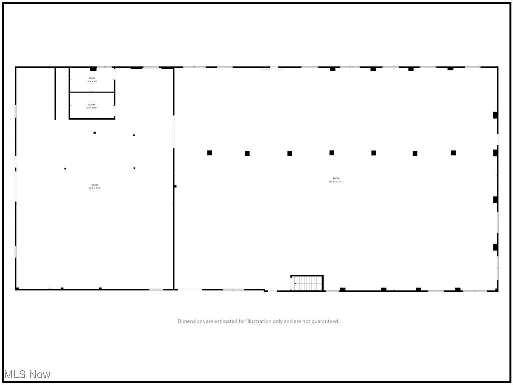
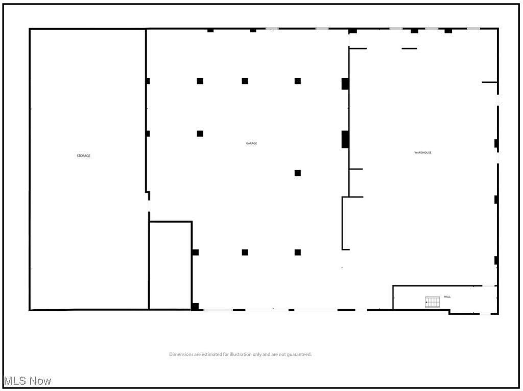
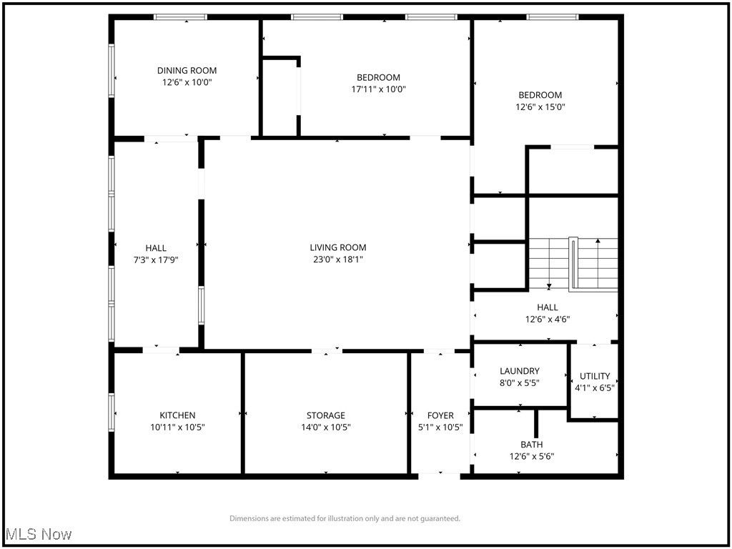
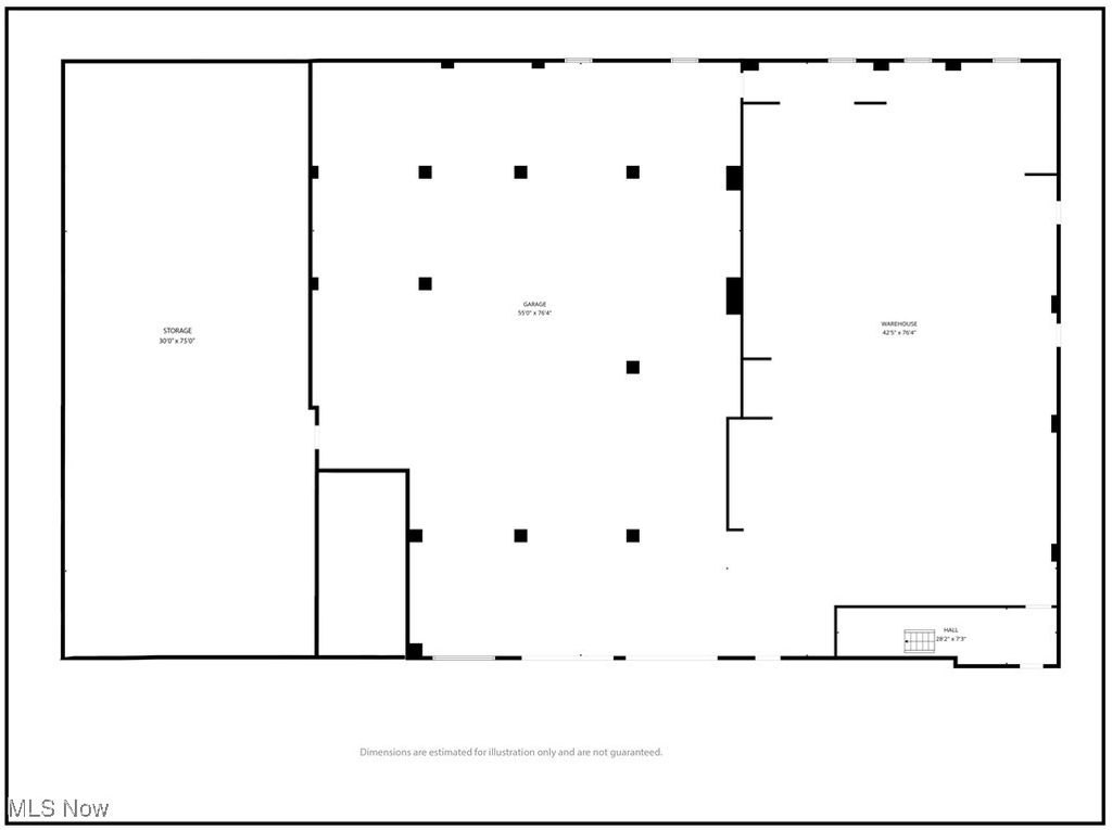
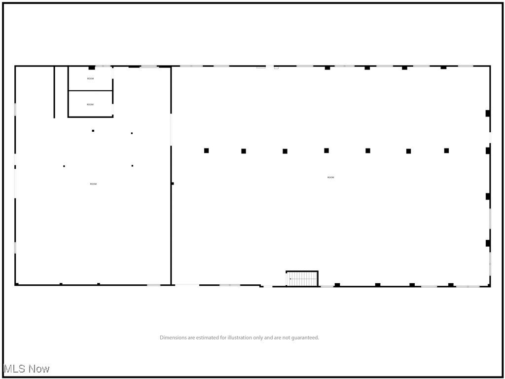
This expansive industrial property offers over 34,000 square feet of functional warehouse space set on approximately 5 acres of riverfront land, creating a rare opportunity for large-scale operations with unmatched access and versatility. Positioned near major transportation routes, the location is ideal for logistics, distribution, manufacturing, or storage-based businesses that need efficiency and room to grow. The facility features a blend of wide-open warehouse areas and dedicated office space, allowing operations and administration to function seamlessly under one roof. High ceilings, large access points, and a flexible layout accommodate heavy equipment, vehicles, and adaptable workflows. An added bonus is the second-floor one-bedroom apartment, perfect for on-site management or supplemental rental income. Outside, the property truly shines with extensive paved parking, generous truck maneuvering space, and outdoor storage potential. The river frontage, combined with nearby rail access, enhances transportation options and long-term operational value. With ample land available for expansion or redevelopment, this property supports both immediate use and future growth. Whether you're expanding an existing operation or investing in a high-capacity industrial site with strong infrastructure and location advantages, this property delivers scale, access, and opportunity in one impressive package. Schedule a private showing to explore the full potential this unique riverfront facility has to offer.
Property Type(s):
Commercial
| Last Updated | 12/13/2025 | Year Built | 1907 |
|---|---|---|---|
| County | Belmont |
Additional Details
| AIR | Central Air |
|---|---|
| AIR CONDITIONING | Yes |
| BASEMENT | None |
| HEAT | Forced Air, Natural Gas |
| INTERIOR | Conveyor, LoadingDock, OverheadDoors, PrivateRestrooms, PublicRestrooms |
| LOT | 5 acre(s) |
| LOT DESCRIPTION | Waterfront |
| PARKING | Asphalt, Gravel |
| SEWER | Public Sewer |
| STORIES | 2 |
| TAXES | 4486 |
| WATER | Public |
| WATERFRONT | Yes |
| ZONING | Commercial |
Location
Contact us about this Property
| / | |
| We respect your online privacy and will never spam you. By submitting this form with your telephone number you are consenting for Ben Schafer to contact you even if your name is on a Federal or State "Do not call List". | |
Listing provided by: Garrison C Wolfe | 304-312-8930, RE/MAX Broadwater, 304-242-2600, travisbroadwater@gmail.com
The data relating to real estate for sale on this website comes in part from the Internet Data Exchange program of NEOHREX. Real estate listings held by brokerage firms other than Ben Schafer Realty are marked with the Internet Data Exchange logo and detailed information about them includes the name of the listing broker(s).
Listing information is deemed reliable, but not guaranteed.
Data Last Updated: 1/13/26 2:20 PM PST
This IDX solution is (c) Diverse Solutions 2026.
Like Us On Facebook

Search for your next home
Latest Real Estate
-
$450
612 West Street #Suite 8
Caldwell, OH
-
$450
612 West Street #Suite 7
Caldwell, OH
-
$500
612 West Street #Suite 6
Caldwell, OH
-
$500
612 West Street #Suite 5
Caldwell, OH
-
$500
612 West Street #Suite 4
Caldwell, OH
-
$500
612 West Street #Suite 3
Caldwell, OH
-
$7,333
18005 Woodsfield Road
Caldwell, OH
-
$24,900
44885 Road Fork Road #44885
Caldwell, OH
-
$34,900
802 Fairground Street
Caldwell, OH
-
$49,900
608 west Street
Caldwell, OH
-
$60,000
Cross Street
Caldwell, OH
-
$62,500
SR 215
Caldwell, OH
-
$75,000
1017 Fairground Street
Caldwell, OH
-
$85,000
817 Belford Street
Caldwell, OH
-
$95,000
616 Miller Street
Caldwell, OH
-
$99,900
849 Walnut Street
Caldwell, OH
-
$118,500
837 Lewis Street
Caldwell, OH
-
$199,900
44250 Fairground Road
Caldwell, OH
-
$217,500
817 Walnut Street
Caldwell, OH
-
$244,900
16895 Bronze Heights Lane
Caldwell, OH
-
$282,000
Glen Long Road
Caldwell, OH
-
$297,000
45330 Maple View Circle
Caldwell, OH
-
$335,900
17583 Davis Ridge Road
Caldwell, OH
-
$350,000
49197 John Tomcho Road
Caldwell, OH
Lot Size
43,125 sqft
Home Size
8,000 sqft
Beds
N/A
Baths
N/A
Lot Size
27,879 sqft
Home Size
N/A
Beds
N/A
Baths
N/A
Lot Size
5,750 sqft
Home Size
754 sqft
Beds
2 Beds
Baths
1 Bath
Lot Size
5,750 sqft
Home Size
832 sqft
Beds
2 Beds
Baths
1 Bath
Lot Size
2,501 sqft
Home Size
1,313 sqft
Beds
3 Beds
Baths
1 Bath
Lot Size
5,663 sqft
Home Size
816 sqft
Beds
2 Beds
Baths
1 Bath
Lot Size
5,750 sqft
Home Size
2,422 sqft
Beds
4 Beds
Baths
2 Baths
Lot Size
23,262 sqft
Home Size
3,408 sqft
Beds
3 Beds
Baths
2 Baths
Lot Size
16,858 sqft
Home Size
1,693 sqft
Beds
3 Beds
Baths
2 Baths
Lot Size
2.27 ac
Home Size
2,120 sqft
Beds
3 Beds
Baths
4 Baths
Lot Size
25,483 sqft
Home Size
2,376 sqft
Beds
5 Beds
Baths
3 Baths
-
Lot Size4,356 sqft
Home Size150 sqft
BedsN/A
BathsN/A
-
Lot Size4,356 sqft
Home SizeN/A
BedsN/A
BathsN/A
-
Lot Size4,356 sqft
Home SizeN/A
BedsN/A
BathsN/A
-
Lot Size4,356 sqft
Home SizeN/A
BedsN/A
BathsN/A
-
Lot Size4,356 sqft
Home SizeN/A
BedsN/A
BathsN/A
-
Lot Size4,356 sqft
Home SizeN/A
BedsN/A
BathsN/A
-
Lot Size43,125 sqft
Home Size8,000 sqft
BedsN/A
BathsN/A
-
Lot Size27,879 sqft
Home SizeN/A
BedsN/A
BathsN/A
-
Lot Size8,712 sqft
Home SizeN/A
BedsN/A
BathsN/A
-
Lot Size6,665 sqft
Home SizeN/A
BedsN/A
BathsN/A
-
Lot Size27,443 sqft
Home SizeN/A
BedsN/A
BathsN/A
-
Lot Size5.03 ac
Home SizeN/A
BedsN/A
BathsN/A
-
Lot Size5,750 sqft
Home Size754 sqft
Beds2 Beds
Baths1 Bath
-
Lot Size5,750 sqft
Home Size832 sqft
Beds2 Beds
Baths1 Bath
-
Lot Size2,501 sqft
Home Size1,313 sqft
Beds3 Beds
Baths1 Bath
-
Lot Size5,663 sqft
Home Size816 sqft
Beds2 Beds
Baths1 Bath
-
Lot Size9,192 sqft
Home SizeN/A
Beds3 Beds
Baths1 Bath
-
Lot Size3.29 ac
Home SizeN/A
BedsN/A
BathsN/A
-
Lot Size5,750 sqft
Home Size2,422 sqft
Beds4 Beds
Baths2 Baths
-
Lot Size23,262 sqft
Home Size3,408 sqft
Beds3 Beds
Baths2 Baths
-
Lot Size47.00 ac
Home SizeN/A
BedsN/A
BathsN/A
-
Lot Size16,858 sqft
Home Size1,693 sqft
Beds3 Beds
Baths2 Baths
-
Lot Size2.27 ac
Home Size2,120 sqft
Beds3 Beds
Baths4 Baths
-
Lot Size25,483 sqft
Home Size2,376 sqft
Beds5 Beds
Baths3 Baths